13 Pacific St
Boston, MA 02127

Scroll to Content

Details

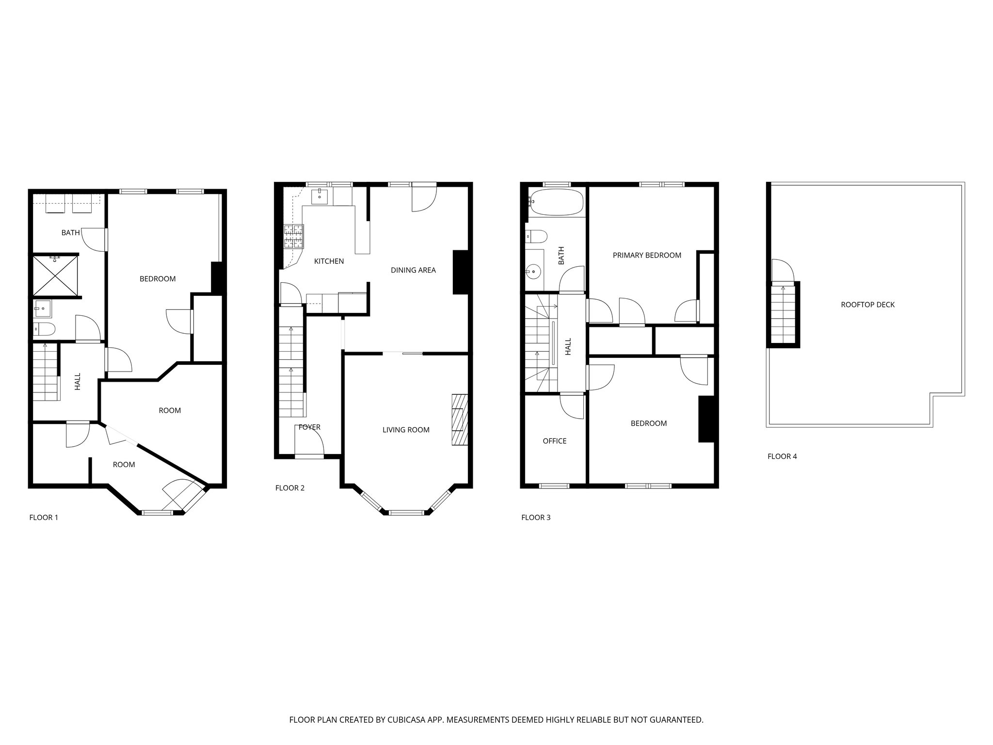
Welcome to 13 Pacific St — a rare single-family Victorian offering history, sunlight, and unmatched charm in the heart of South Boston. Built by renowned architect Patrick Ford, designer of the Gate of Heaven Church, this was the very first home on the street and still stands apart. Its striking bay window extends farther than any other, flooding the rooms with natural light and capturing sweeping city views. Inside, triple crown moulding, pocket doors, and high ceilings showcase timeless craftsmanship, while the thoughtful layout offers 3 bedrooms, 2 full baths, and a versatile office. The dining room opens to a private patio and alleyway with direct access to the newly restored Thomas Park — now a gleaming marble monument with breathtaking harbor and skyline vistas. A roof deck crowns the home, offering panoramic city views. The lower level has been transformed into a fully compliant Airbnb suite, generating approximately $30,000 annually. On the market for the first time in 40 years, this residence blends architectural significance, modern versatility, and South Boston soul.

  • $1,200,000
  • 3 Bedrooms
  • 2 Bathrooms
  • 2,121 Sq/ft

Images

Videos

Floor Plans

3D Tour